
建築企画・ボリュームチェック業務
効率と精度で未来の建築をサポート

弊社と連携している経験豊富な建築士は、ボリュームチェック業務に対応できます。
●検討内容:道路斜線や隣地斜線、日影規制、天空率などの法令条件に基づいたボリュームの整理や視覚化の補助を行います。これにより、最大限可能な建築物のボリュームイメージをサポートいたします。
※弊社の図面は、施工や確認申請を目的とした「設計図書」ではなく、あくまで設計の前段階におけるご提案資料となります。
●作成期間:3日以内にプランを提出します。
●利用ソフト:AutoCAD(作図)、ADS(日影規制、天空率検討)
●納品ファイル:pdf(図面一式)、dwg/jww(ソースデータがdwg)、adsf(日影規制、天空率検討データ)
価額表
図面紹介

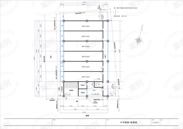
平面図
平面図の特徴:
-
壁を太い実線で表現しています。
-
容積率対象部分に色を付け、視認性を高めています。
-
建築面積の範囲を斜線ハッチングで示しています。
-
各部屋を中心の輪郭線で囲み、CADにて面積を算出しています。
-
PSおよびMBは容積率の対象となるため、部屋面積に含まれているものと想定し、個別には表示していません。
-
断面図の作成が不要な場合は、道路斜線などの高度制限に関する計算式を記載します。

断面図
断面図の特徴:
-
各階の階高、建築物の最高高さ、道路斜線、高度斜線、北側斜線、および隣地境界線を表現します。
-
壁を一本線で表現しています。
-
採光検討が必要な場合は、採光検討の計算式を記入します。

概要書の特徴:
-
EXCELで作成しています。
-
EXCELデータをAutoCADに導入し、CADデータと連動させています。
-
各階の面積、住戸数、および階高を表示しています。
-
PSおよびMBは容積率の対象となるため、部屋面積に含まれているものと想定し、個別には表示していません。

日影規制検討の特徴:
-
ソフト「ADS」で検討を行います。
-
等時間日影図とボリュームのイメージ図を提供します。
-
adsfデータの納品は時期によって有料となる場合があります。

天空率検討の特徴:
-
ソフト「ADS」で検討を行います。
-
ボリュームのイメージ図を提供します。
-
天空率測定点判定表を提供する。
-
adsfデータの納品は時期によって有料となる場合があります。
関連記事

選ばれる3つの理由



圧倒的スピード対応
最短1日から対応可能ですので、お急ぎの方はご連絡ください。基本的には3日以内にプランを提出します。
確かな品質
土地のポテンシャルを最大限に引き出した提案が可能です。CADやADSなどの専門ソフトを使用して、精密なプランをご提供できます。
手ごろな価格
建築の規模や複雑さによって、適した見積りを提供いたします。修正に関しては、追加費用なしでご満足いただけるまで対応いたします。
お客様の声

株式会社テンポイント
@不動産会社
かなり急ぎの案件ですが遅い時間にまでご対応頂き、納期より早く納品頂けました。また別案件も宜しくお願い致します。

@建築事務所
迅速にご対応いただき、誠にありがとうございました。おかげさまで、スムーズに進行することができ、大変助かりました。これからも引き続き、どうぞよろしくお願い申し上げます。

@デベロッパー
目的を無事に達成することができましたので、大変満足しています。 スタッフの対応も親切で丁寧であり、全体を通して非常にスムーズに進めることができました。 期待以上の結果を得ることができました。

豆 知 识
★ ボリュームチェックとは?
ボリュームチェックは、土地のポテンシャルや建築に関する法的制約を確認するプロセスであり、「その場所における建物の可能性」という点を評価します。この作業は、建築の「コンセプト設計」段階における重要な要素です。
建物の建設には、建築基準法や都市計画法、地方自治体の条例、消防法など、さまざまな法的制限が存在します。
たとえば、建築基準法によれば、「建蔽率」「容積率」「日影規制」「北側斜線規制」「高さ制限」「道路規制」「用途地域」「防火地域」などの規制があります。これらの法的制限を考慮し、土地にどのような建物が建てられるかを調査・検討します。
★ ボリュームチェックのメリット
ボリュームチェックを行うことで、特定の土地を購入する際に何が計画可能であり、部屋をどの程度の家賃で貸し出し、そしてどの程度の収益が期待できるかを概算できます。これにより、土地の有効活用に関するビジネス計画を立てることができます。
マンションやビルの建設を検討している所有者や不動産業者は、まずこのようなボリュームチェックや簡易プランを取得し、土地の購入を検討することが一般的です。
★ ボリュームチェック業務は建築法上の「設計」ではありません
建築士法によれば、他人からの委託に基づいて一定規模以上の建築物を「設計」する場合、建築士の資格と建築士事務所の登録が必要がありますが、ボリュームチェック業務は建築法上の「設計」ではありません。
その理由は次の通りです。建築士法において、「設計」とは「設計図書」の作成を指します。設計図書とは、建築工事を実施するために必要な図面と仕様書のことを指します。主に「意匠図」、「構造図」、「設備図」、「外構図」の4つの種類があります。ボリュームチェックで作成される図面はいずれにも該当せずので、「設計」業務には含まれません。(確認先:国土交通省住宅局建築指導課)
「意匠図」とは、建物全体の形態や間取りなど、デザインの側面に重点を置いた図面です。ボリュームチェックの図面は容積率計算に使用される概略的な図面であり、建物の外観形態や間取り、デザインには触れませんので、「意匠図」とは異なります。
★ ボリュームチェックの依頼先
ボリュームチェック業務は、建築基準法上の「設計」には該当しないため、建築士(一級・二級)の資格や建築事務所の登録は不要です。そのため、不動産業者様がご自身で行うことも法的には問題ありません。
ただし、正確性を求めるのであれば、図面作成のスキルや専門知識を持つプロに依頼する方が安心です。
一般的に建築事務所に依頼する場合、相場は5~8万円程度と高額になりがちですが、フリーランスや副業で活動する建築士に依頼すれば、よりコストパフォーマンスの良いサービスが受けられます。
弊社は建築事務所ではありませんが、多数の建築士と連携しており、高品質なプランをリーズナブルな料金でご提供可能です。
★日影規制とは
日影規制は、近隣の日照を確保するために建物の高さや形状を制限する重要な規制です。これは、特に冬至日の影の長さを基準とするため、北側の建物に厳しい制約を与えます。この規制をクリアするためには、建物の高さを抑えたり、上層階を階段状にするなどの工夫が必要です。その結果、建物全体のボリュームが小さくなることがあります。
日影規制は、道路斜線や高度斜線と合わせて検討されますが、多くの場合、日影規制がボリュームを決定する最大の要因となります。
★天空率検討とは
天空率の検討は、建築ボリュームを最大化する上で非常に重要です。
天空率とは、敷地から空を見上げたときの開放度を数値化したもので、この数値が一定の基準を満たせば、道路斜線や隣地斜線といった高さ制限の規制を緩和できます。特に、道路が狭い敷地では、道路斜線が大きな制約となりますが、天空率を適用することで、より大きな建物を建てられることがあります。
一方で、道路が十分広い場合は道路斜線が問題にならないため、日影規制や高度斜線が主な規制となり、天空率の検討は不要です。

制作案例

(間取り案は参考程度)




































































